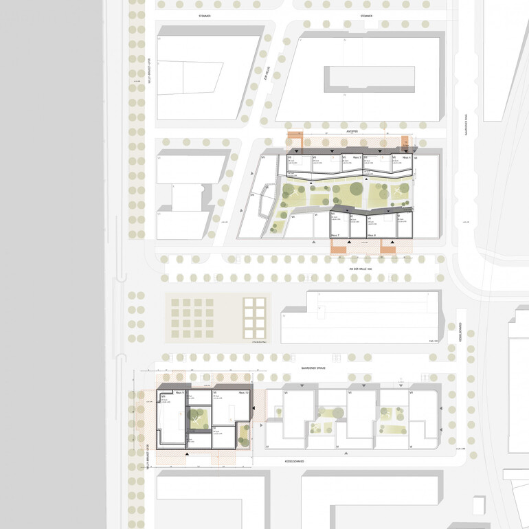
Neubebauung Hörn
KielAuslober
Projektgemeinschaft Hörnbebauung GbR
Verfahrensart
Workshop 2018, 1.Preis
Mitarbeiter
Hoang Hai Nguyen
Leoni Stauf
Özgür Irban
Candy Lück
Modellbau
Architekturmodellbau Voigt
Auslober
Projektgemeinschaft Hörnbebauung GbR
Verfahrensart
Workshop 2018, 1.Preis
Mitarbeiter
Hoang Hai Nguyen
Leoni Stauf
Özgür Irban
Candy Lück
Modellbau
Architekturmodellbau Voigt